The Expansive Home

Oakland, CA

We built up, we built down and rebuilt everything in between.

 
1812_XBP1-0.jpg

The house grew with the family

The original home was cramped and could not accommodate a family of five plus an apartment for their matriarch. Love of the neighborhood and community kept them in place.

This project was completed with great care and attention to detail by Kodiak Construction. Custom cabinetry by Rex Cabinets.

A single story home becomes three stories.

Lower floor expanded for the ‘Garden Apartment.’

Lower floor expanded for the ‘Garden Apartment.’

Main floor opened up for great room and connection to the back yard via new deck.

Main floor opened up for great room and connection to the back yard via new deck.

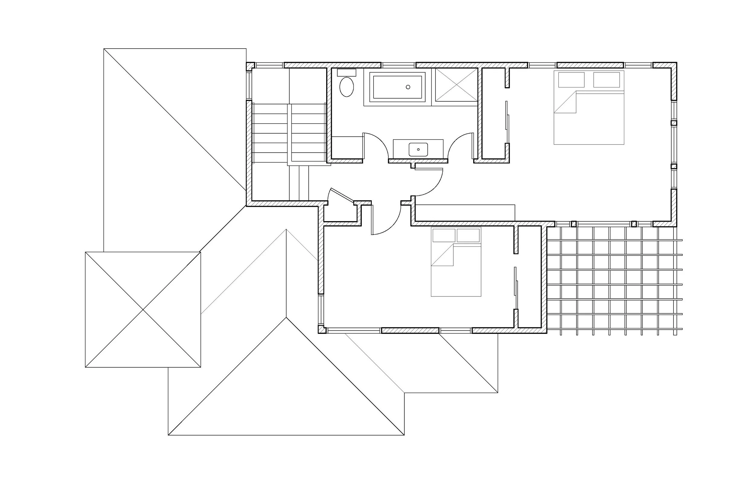
New upper floor with master suite

New upper floor with master suite

 

 More photos coming soon!

Previous
Previous

Hillside Residences

Next
Next

The Reimagined Home